Objekt 4 von 4
Vorheriges Objekt
Zurück zur Übersicht
Zurück zur Übersicht
Vorheriges Objekt
Zurück zur ÜbersichtNeubrandenburg: Große Drei-Raumwohnung, renoviert !
Objekt-Nr.: 2181AL
Schnellkontakt
Optionen
Optionen
Basisinformationen
Adresse:
17036 Neubrandenburg
Mecklenburg-Vorpommern
Mecklenburg-Vorpommern
Stadtteil:
Neubrandenburg
mtl. Kaltmiete:
547 €
Wohnfläche ca.:
85,37 m²
Zimmeranzahl:
3
Weitere Informationen
Weitere Informationen
Wohnungstyp:
Etagenwohnung
Warmmiete inkl. NK:
799 €
Nebenkosten:
252 €
Kaution / Genossenschaftsanteile:
1100.00 €
Heizkosten:
sind in den Nebenkosten enthalten
Anzahl Schlafzimmer:
2
Anzahl Badezimmer:
1
Zustand:
neuwertig
Heizung:
Zentralheizung
Kaution / Genossenschaftsanteile:
1100.00 €
Beschreibung
Beschreibung
Objektbeschreibung:
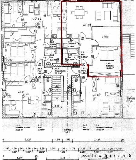
Die großzügige Wohnung befindet sich im zweiten Obergeschoss. Auf dem Grundriss ist es die Wohnung 03, oben rechts. Das dritte Zimmer wurde nachträglich abgetrennt. Durch Umbau hat die Wohnung zur Zeit einen sehr großen offenen Wohn- und Küchenbereich.
In den Nebenkosten sind die Betriebskosten in Höhe von 160€ enthalten,
sowie die Heizkosten in Höhe von 160 €.
Die Wohnung wäre ab dem 12.02.2026 verfügbar.
In den Nebenkosten sind die Betriebskosten in Höhe von 160€ enthalten,
sowie die Heizkosten in Höhe von 160 €.
Die Wohnung wäre ab dem 12.02.2026 verfügbar.
Ausstattung:
Die Wohnfläche teilt sich auf ein Bad mit Dusche, einen großen und offenen Wohn- und Küchenbereich auf. Das Bad ist innenliegend, ohne Fenster. Im Wohnbereich teilweise bodentiefe Fenster. Das Bad ist gefliest, der Wohn- und Küchenbereich ist mit Laminat ausgelegt.
Lage:
Die große Wohnung befindet sich in der Oststadt von Neubrandenburg. Bus und fast alle Versorgungseinrichtungen sind zu Fuß in Kürze zu erreichen.
Sonstiges:
Energieausweis, beim Eigentümer angefordert,
wird zur Besichtigung vorgelegt.
wird zur Besichtigung vorgelegt.
Anmerkung:
Die von uns gemachten Informationen beruhen auf Angaben des Verkäufers bzw. der Verkäuferin. Für die Richtigkeit und Vollständigkeit der Angaben kann keine Gewähr bzw. Haftung übernommen werden. Ein Zwischenverkauf und Irrtümer sind vorbehalten.
AGB:
Wir weisen auf unsere Allgemeinen Geschäftsbedingungen hin. Durch weitere Inanspruchnahme unserer Leistungen erklären Sie die Kenntnis und Ihr Einverständnis.
AUF WUNSCH empfehlen wir Ihnen einen Finanzierungsexperten
Zurück zur Übersicht





















